
閥門密封試壓機用來檢驗閥門啟閉件和閥體密封副性能的試驗。閥門密封試驗分高壓液體密封試驗和低壓氣體密封試驗。密封試驗前, 除靠油脂密封的閥門外, 應去除密封面上的油污, 但允許涂粘度不大于沒有的防護劑。閥門密封試驗時, 對于規定介質流向的閥門, 按規定的流通方向加壓, 止回閥從出口端加壓。關于閥門密封性能試壓機可以分成以下幾種: 截斷閥類(保定蝶閥液壓測試臺、保定閘閥試驗臺、保定截止閥測試機、保定球閥試壓機、止回閥打壓機等) 控制閥類試壓機, 安全閥性能測試臺。

閥門密封試壓
1.閥門氣密封試壓
將被測閥門半開,開啟控制模塊上“盲板進氣閥”、“盲板進氣保壓閥”,氣體進入閥門,待其充滿后,可觀察到“盲板氣壓表”指示在設定壓力位置,關閉被測閥門,被測端卸壓,另一端加壓至試驗壓力并保持,讓閥門密封試壓機檢測被測端泄露情況。也可通過觀察“盲板氣壓表”的掉壓情況判斷被測端密封的泄露。
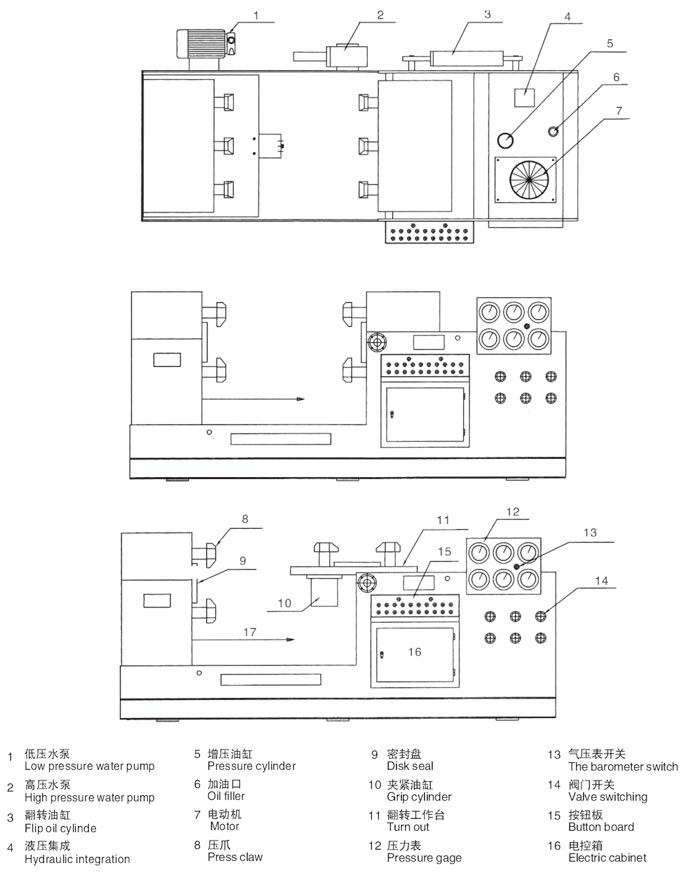
保定閥門液壓測試臺的外形結構示意圖:

2.閥門水密封試壓
將被測閥門半開,開啟控制模塊上“盲板進水閥”,液體進入閥門,待其充滿后,可觀察到“盲板水壓表”指示在設定壓力位置,關閉被測閥門,被測端卸壓,另一端加壓至試驗壓力并保持,檢測被測端泄露情況。也可通過觀察“盲板水壓表”的掉壓情況判斷被測端密封的泄露。


3.閥門密封試壓機注意事項
在閥門密封試壓機測試完成后,必須先將閥門內卸壓后,才能按“工作臺松開”按鈕,防止傷人。
當壓緊油缸工作時,橫移油缸的移出和移進,必須在按“工作臺松開”按鈕鍵后,才能讓閥門密封試壓機動作。
