
YFA-F型閥門殼體試壓機是羅浮閥門集團浙江保定西高泵閥有限公司專業生產產品,閥門的殼體試壓機是對閥體與閥蓋等連接而成的整個閥門外殼進行的壓力殼體試驗。其目的是檢查閥體和閥蓋的致密性, 即包括閥體與閥蓋連接處在內的整個殼體的耐壓能力。在閥門殼體試驗之前,不允許對閥門涂漆和使用其他防止滲漏的涂層。對于用戶抽查庫存閥門時, 則不再除掉已有涂層。閥門殼體試驗要求:殼體包括閥體與閥蓋連接處不得發生滲漏, 不得有閥門結構損傷。
閥門的殼體密封試驗前的準備
①清除閥門零件的油漬,將它們擦干并在干凈、沒有灰塵和油漬的環境下將閥門安裝好。
②閥門殼體試壓機將螺栓擰緊到預定的力矩值或拉力值,并記錄下該值。
③用合適的熱電耦與閥門連接,從而能在整個試驗過程中監控閥體、閥蓋的溫度。

閥門殼體試壓機試驗
①低溫試驗裝置。將閥門安裝在試驗容器內并連接好,要確保閥門填料處在窗口頂部沒有汽化氣體的位置。
②在室溫下用氦氣以更大閥座試驗壓力進行初始的系統驗證試驗,以確保閥門是在合適的狀態下,然后開始進行閥門試驗。
③將閥門浸入液氮中進行冷卻,液體的水平面至少遮蓋住閥體與閥蓋的連接部位。在整個冷卻過程中一直向閥門提供氦氣。在冷卻過程中,用安裝在適當位置上的熱電偶對閥體和閥蓋的溫度進行監控。
水壓或氣壓殼體試驗后,在閥體和閥蓋的連接處,閥門的填料處擦上肥皂或浸入水中,用干燥的無油空氣或氮氣進行殼體密封試驗。其余與普通閥門相同。
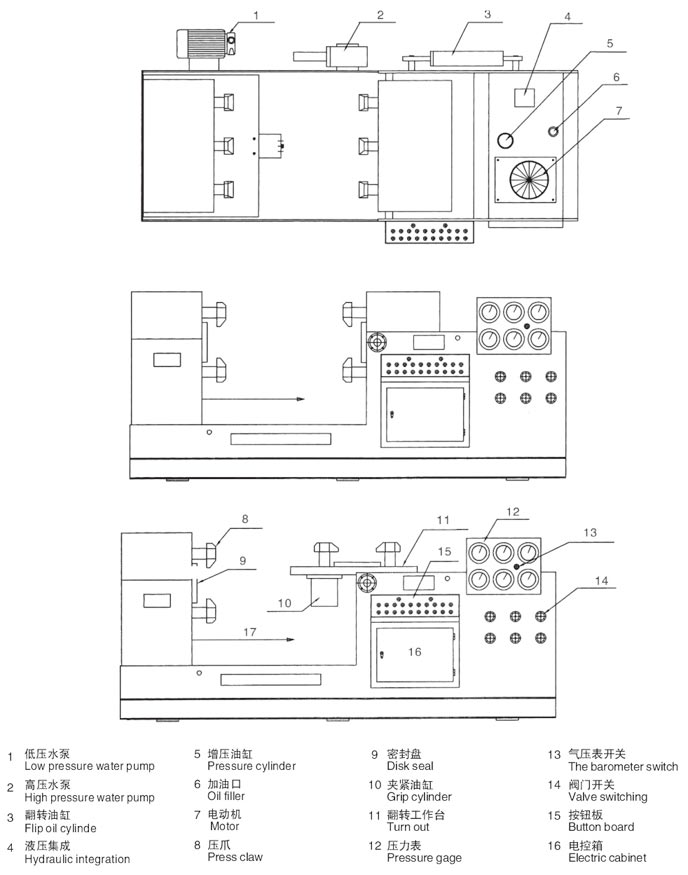
保定閥門液壓測試臺的外形結構示意圖:

液壓油缸的操作順序
1開啟閥門殼體試壓機電源及水泵控制電源。
2按“油泵啟動”按鈕,油泵運行,油泵指示燈亮。


3調整壓緊油缸壓力
根據被測閥門規格及測試內容,按數據表調整壓緊油缸更大壓力;將壓緊油缸伸出到更大位置,調節遠程調壓旋鈕,將遠程調壓壓力表調到規定數值。
4工作平臺移出
按“工作臺移出”按鈕,移動油缸推動工作臺移出,到設定位置限位開關動作,工作臺運動停止。
5被測閥門放置
將閥門放到移動平臺的盲板上,中心對齊。
6工作平臺移進
按“工作臺移進”按鈕,移動油缸推動工作臺移進,到設定位置限位開關動作,工作臺運動停止。
7壓緊油缸伸出
同時按右上角“工作臺壓緊”按鈕和左下角“壓緊”按鈕,壓緊油缸伸出。
8壓緊油缸行程控制
當閥門做端面封測試時,上盲板與閥門密封端面接觸,觀察遠程調壓壓力表指示壓力到達設定壓力時,按“停止”按鈕,此時就可做被測閥門的殼體試壓(強度試壓)及密封測試;
當閥門做流量孔封測試時,上盲板O型圈與閥門流量孔接觸密封,插入足夠的試壓深度,按“停止”按鈕,此時就可做被測閥門的殼體強度及密封測試。
