
數字控制保定閥門試壓機是在YFC系列保定閥門液壓測試臺的基礎上增加了泄漏量自動檢測系統的最新保定閥門試壓檢測設備,主要是用來完成對閥門試壓機工作過程中有關數據的收集,對試驗過程動態的監控和數據的記錄,并且可以打印工件測試的結果相關參數,這樣就可以方便使用單位產品的質量內部管理和售后服務,另外數字控制閥門試壓機還可以對每次的測試結果記錄于存儲卡中,更能方便管理者對產品縱向質量的了解,為日后的生產和出廠產品質量備案提供重要的參考依據。

數字控制閥門試壓機除具備YFC系列閥門液壓測試臺產品一切功能外,還能對各類閥門作氣、液密封試驗,它能屏幕顯示瞬時泄漏量(泄漏率)和累積泄漏量的數據曲線,并能打印輸出,可按GB/T13927-2008、JB/T9092-1999、API598等標準及自定標準,自動判定等級,給出合格性結論。系統靈敏度達1mm3,這是現行人工計錄液滴或檢點氣泡的原始方法所無法比擬的。解決了對GB/T13927-92標準的泄漏量指標規定無法實施的難題。
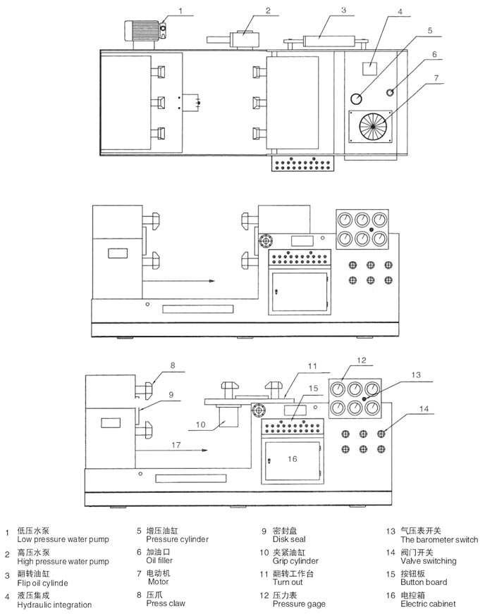
閥門液壓測試臺的外形結構示意圖:

液壓閥門試驗裝置系統采用了特有的專門便于工業現場工作的可編程控制器,該控制器為系統正常的工作提供了穩定的硬件條件;該機還選用觸摸屏做人機界面,這樣既方便操作又能體現出友好,有利于于工作人員對系統的操作。該機的系統還提供了在線幫助文檔,可以使操作人員不需離開機器就能操作整個系統。
閥門試壓檢測設備的系統智能化應用已徹底解決了較低效率的人工記錄方法和不便于實時企業歷史的管理難題。數字控制閥門試壓機產品適合于閥門產品制造商/生產廠家、石化用戶和質量監測部門使用,并由于能提供連續性定量數據,可用于科研單位進行泄漏過程分析和泄漏機理研究。


數字控制閥門試壓機特性
¤閥門泄漏量曲線顯示、數字顯示、打印輸出
¤試驗壓力數字顯示、打印輸出
¤自動判別密封試驗等級
¤打印有關其它試驗內容
